Alépítmények
Előkerti főelzáró tartó
Előkerti mérős alépítmény
Előkerti utólagos alépítmény
Előkerti gázóraszekrények
Előkerti főelzáró
Előkerti szabályozó állomás
Előkerti mérőállomás
Előkerti szabályozó- és mérőállomás
Előkerti iker szabályozó- és mérőállomás
Fali gázóraszekrények
Fali szabályozó védőszekrény
Fali szabályozó állomás
Fali mérő szerelősín
Fali mérőállomás
Fali szabályozó- és mérő szerelősín
Fali szabályozó- és mérőállomás
Fali iker szabályozó- és merőállomás
Falba építhető gázóraszekrények
Falba építhető szabályozó védőszekrény
Falba építhető merőállomás
Falba építhető iker mérőállomás
Falba építhető szabályozó- és merőállomás
Falba építhető iker szabályozó- és mérőállomás
626425|173811
Alépítmények
100001|173811
Előkerti gázóraszekrények
100002|173811
Fali gázóraszekrények
100003|173811
Falba építhető gázóraszekrények
Belép
Elfelejtettem a jelszavamat
Regisztráció
A kosár üres.
Vásárláshoz kattintson ide!
Főkategória
Fali gázóraszekrények
Fali mérőállomás
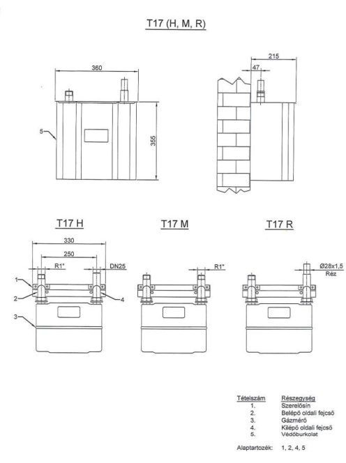
Fali mérőállomás T17 R28
Cikkszám:
FMA_T17_R
Fali mérőállomás T17 R28
Cikkszám:
FMA_T17_R
Raktáron
2 db
43 014
Ft
-DC01 minőségű acélból készült, zománcfesték
-TELEFONOS EGYEZTETÉS SZÜKSÉGES
-Méretek:360x355x215
-Magas minőségű festett lemez burkolat
-Magas korrózió védelem
belépő: tetőn, kilépő: tetőn, réz Ø28
Kosárba
Kedvencekhez
Nyomtat
Összehasonlítás
Részletek
Adatok
Részletek
Műszaki Leírás
A szerkezet főbb részei a védőszekrény, szerelősín, kilépő és belépő fejcső.
A szekrény 0,8/1,0 mm-es DC01 minőségű finom acéllemezből készült lakatos konstrukció. A kivezetések helyén a ki- és belépő csővezeték részére kicsípéseket készítettek. A szerelősín 2,0/3,0 mm-es minőségű acéllemezből készült hajlított tartó, amely 2/4 db kör vagy ovális furaton keresztül állványcsavar, tipli segítségével erősíthető a falszerkezethez. A szerelősínen kialakított további négy kör vagy ovális furaton keresztül csavarkötéssel rögzíthetők. A fejcső felületvédelmére galvanizálást alkalmaztak.
Adatok
Cikkszám
FMA_T17_R
Adatkezelési beállítások
Weboldalunk az alapvető működéshez szükséges cookie-kat használ. Szélesebb körű funkcionalitáshoz (marketing, statisztika, személyre szabás) egyéb cookie-kat engedélyezhet. Részletesebb információkat az
Adatkezelési tájékoztató
ban talál.
Nem engedélyezem
Engedélyezem
Adatkezelési beállítások