Alépítmények
Előkerti főelzáró tartó
Előkerti mérős alépítmény
Előkerti utólagos alépítmény
Előkerti gázóraszekrények
Előkerti főelzáró
Előkerti szabályozó állomás
Előkerti mérőállomás
Előkerti szabályozó- és mérőállomás
Előkerti iker szabályozó- és mérőállomás
Fali gázóraszekrények
Fali szabályozó védőszekrény
Fali szabályozó állomás
Fali mérő szerelősín
Fali mérőállomás
Fali szabályozó- és mérő szerelősín
Fali szabályozó- és mérőállomás
Fali iker szabályozó- és merőállomás
Falba építhető gázóraszekrények
Falba építhető szabályozó védőszekrény
Falba építhető merőállomás
Falba építhető iker mérőállomás
Falba építhető szabályozó- és merőállomás
Falba építhető iker szabályozó- és mérőállomás
626425|227244
Alépítmények
100001|227244
Előkerti gázóraszekrények
100002|227244
Fali gázóraszekrények
100003|227244
Falba építhető gázóraszekrények
Belép
Elfelejtettem a jelszavamat
Regisztráció
A kosár üres.
Vásárláshoz kattintson ide!
Főkategória
Falba építhető gázóraszekrények
Falba építhető merőállomás
Falba építhető mérőállomás T30 OO
Cikkszám:
FEMA_T30_OO
Falba építhető mérőállomás T30 OO
Cikkszám:
FEMA_T30_OO
Nincs raktáron
69 344
Ft
-DC01 minőségű acélból készült
-Zománcfesték
-Tüzihorganyzott védelem
-Falba építhető doboz
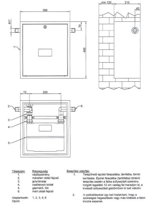
-Méret:395x450x210
belépő: oldalt, kilépő: oldalt
Kedvencekhez
Nyomtat
Összehasonlítás
Részletek
Adatok
Részletek
Műszaki Leírás
A védőszekrény 1,0/0,8 mm-es DC01 minőségű finomacélból készült lakatos konstrukció. A szerkezet elemeit darabolás, kicsípés, hajlítás, összeillesztés után szakaszos hegesztési varratokkal állítják össze. A gázmérő leolvasására az ajtón 57x107 mm-es leolvasó ablak került kialakításra. A beépített szerelősín 25x5 mm.es lapos acél vagy 2 mm-es hajlított tartó. G4 teljesítmény esetén a primer oldalon DN25, G10 és G16 teljesítménynél a primer és szekunder oldalon egyaránt DN32 méretben elzárási lehetőséget biztosítottak. A védőburkolat a falba süllyesztett. A szerkezet felületvédelmére foszfátos, zsírtalanítás után alapozó és zománcfestést alkalmazunk. A lakatos szerkezet technológia alkalmazásával állítják össze.
Adatok
Cikkszám
FEMA_T30_OO
Adatkezelési beállítások
Weboldalunk az alapvető működéshez szükséges cookie-kat használ. Szélesebb körű funkcionalitáshoz (marketing, statisztika, személyre szabás) egyéb cookie-kat engedélyezhet. Részletesebb információkat az
Adatkezelési tájékoztató
ban talál.
Nem engedélyezem
Engedélyezem
Adatkezelési beállítások