Alépítmények
Előkerti főelzáró tartó
Előkerti mérős alépítmény
Előkerti utólagos alépítmény
Előkerti gázóraszekrények
Előkerti főelzáró
Előkerti szabályozó állomás
Előkerti mérőállomás
Előkerti szabályozó- és mérőállomás
Előkerti iker szabályozó- és mérőállomás
Fali gázóraszekrények
Fali szabályozó védőszekrény
Fali szabályozó állomás
Fali mérő szerelősín
Fali mérőállomás
Fali szabályozó- és mérő szerelősín
Fali szabályozó- és mérőállomás
Fali iker szabályozó- és merőállomás
Falba építhető gázóraszekrények
Falba építhető szabályozó védőszekrény
Falba építhető merőállomás
Falba építhető iker mérőállomás
Falba építhető szabályozó- és merőállomás
Falba építhető iker szabályozó- és mérőállomás
626425|205283
Alépítmények
100001|205283
Előkerti gázóraszekrények
100002|205283
Fali gázóraszekrények
100003|205283
Falba építhető gázóraszekrények
Belép
Elfelejtettem a jelszavamat
Regisztráció
A kosár üres.
Vásárláshoz kattintson ide!
Főkategória
Előkerti gázóraszekrények
Előkerti szabályozó- és mérőállomás
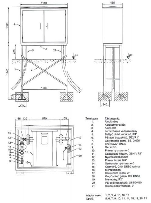
Előkerti szabályzó-mérőállomás T8 G40/PEØ63 - DN50
Cikkszám:
ESZMA_T8_G40_PE63_DN50
Előkerti szabályzó-mérőállomás T8 G40/PEØ63 - DN50
Cikkszám:
ESZMA_T8_G40_PE63_DN50
Nincs raktáron
583 520
Ft
-KHS/100 vagy VF-100 szabályzó, G2
-Méretek:1140x1300x455
-PE63/DN50 összekötő, magas korrózió védelem
-Magas minőségű festett lemez burkolat
-TELEFONOS EGYEZTETÉS SZÜKSÉGES
Tartozékok: alépítmény, védőburkolat, fejcsövek, bilincsek, 1” közcsavar, KF-25 gázszűrő, manométer 0-10 bar, átmenet G5/4”-R1”,
manométer 0-160 mbar, 2” BB golyóscsap, 2” menetvég, PE Ø63 - DN50 összekötő, 3” ívelt védőcső, dréncső
Kedvencekhez
Nyomtat
Összehasonlítás
Részletek
Adatok
Részletek
Műszaki Leírás
A lakatos szerkezet főbb részei az alépítmény, védőszekrény (előlap, hátlap és keret), valamint a fejcsövezés.
Az alépítmény 2 db főtartója 60x30 mm-es zártszelvény, melynek földalatti részére darabolás, sorjázás után 6-6 db lábat hegesztünk. A lábak biztosítják a szerkezet megfelelő stabilitását. 1 db 25x25 mm-es zártszelvény kereszttartó illetve 1 db 25x5 mm-es lapos acél átkötő hegesztett kötéssel kapcsolja össze a főtartókat, melyeken 2-2 db furat található a felszálló PE gázfogyasztó vezetékek védelmére alkalmazott acél védőcsövek állítható csőbilinccsel történő rögzítésére a primer oldalon 5/4” a szekunder oldalon 2”-tól 3” méretig.
Adatok
Cikkszám
ESZMA_T8_G40_PE63_DN50
Adatkezelési beállítások
Weboldalunk az alapvető működéshez szükséges cookie-kat használ. Szélesebb körű funkcionalitáshoz (marketing, statisztika, személyre szabás) egyéb cookie-kat engedélyezhet. Részletesebb információkat az
Adatkezelési tájékoztató
ban talál.
Nem engedélyezem
Engedélyezem
Adatkezelési beállítások